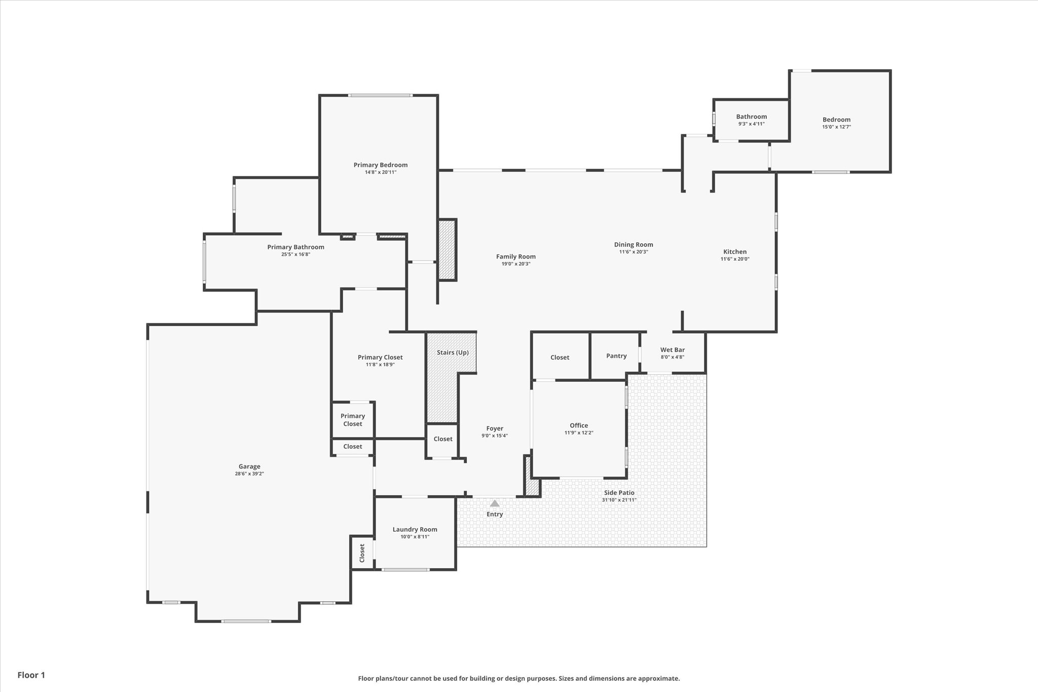
Located Outside City Limits, discover luxury in this 3,507 sq ft former model home on over an acre of beautifully landscaped grounds. This four-bedroom, three-bathroom residence includes a private study and features a seamless open-concept layout, perfect for entertaining. The chef’s kitchen showcases a 48” KitchenAid full gas range, striking stone backsplash, and a beautiful mix of painted white and white oak cabinetry, with a stunning white oak island as the centerpiece. The open flow from kitchen to dining and living areas creates a bright, inviting space ideal for gatherings. Large windows and sliding door give you natural light and gorgeous view of backyard. The private study features custom-made barn doors, and other custom barn doors are also carried throughout the home in the laundry room and the primary bathroom for a cohesive designer look. The primary suite is a true retreat with vaulted ceilings, lots of built in cabinets for storage, a spa-style bath featuring a freestanding soaking tub, oversized dual-head shower, double vanities, and an expansive walk-in closet with a custom island. Built for efficiency and durability, the home includes a full metal roof, spray foam insulation, and a fully encapsulated structure. Enjoy outdoor living in the covered outdoor kitchen featuring Coyote grill, refrigerator, sink, and stone countertops — perfect for year-round entertaining. There are four fireplaces, one in the living room, one on the front and back patio, and a fire pit! Coffee Bar and Walk in Pantry are off to the side of the kitchen, close to a door that leads you to the front patio and fireplace, perfect spot for morning coffee.
Click here for Byrum Acres Deed Restrictions
Available Homes in Byrum Ranch: